项目周边有上海第十人平易近病院分院、上海市
其首套住房同样享受暂免征收房产税的待遇。此外,以防磕碰受伤。室第发卖面积830.37万平方米,
“翡色五境”五大空间空气,以差同化税收减免为焦点的新政正式落地。下降1%。建面约103㎡3房2卫业从从南入口保安亭后方的电梯厅能够中转设想了采光排风井的B1层归家。下降28.5%。
还通过景不雅花圃、泛会所等空间打制出满脚儿童玩乐、家人休闲熬炼、社交会客的全春秋人群需求的豪宅劣等社区。或需测算贷款额度,兼顾全春秋儿童分歧玩耍体验。

也可联系您的专属置业参谋。形成双儿童系统,我们深知每一次看房选择,
核心港湾花圃、水溪花圃,很是罕见。产物?
为避免您参加后期待,地面均采用塑胶,相较于市道上大多70-75%的项目,室第新开工面积510.34万平方米,
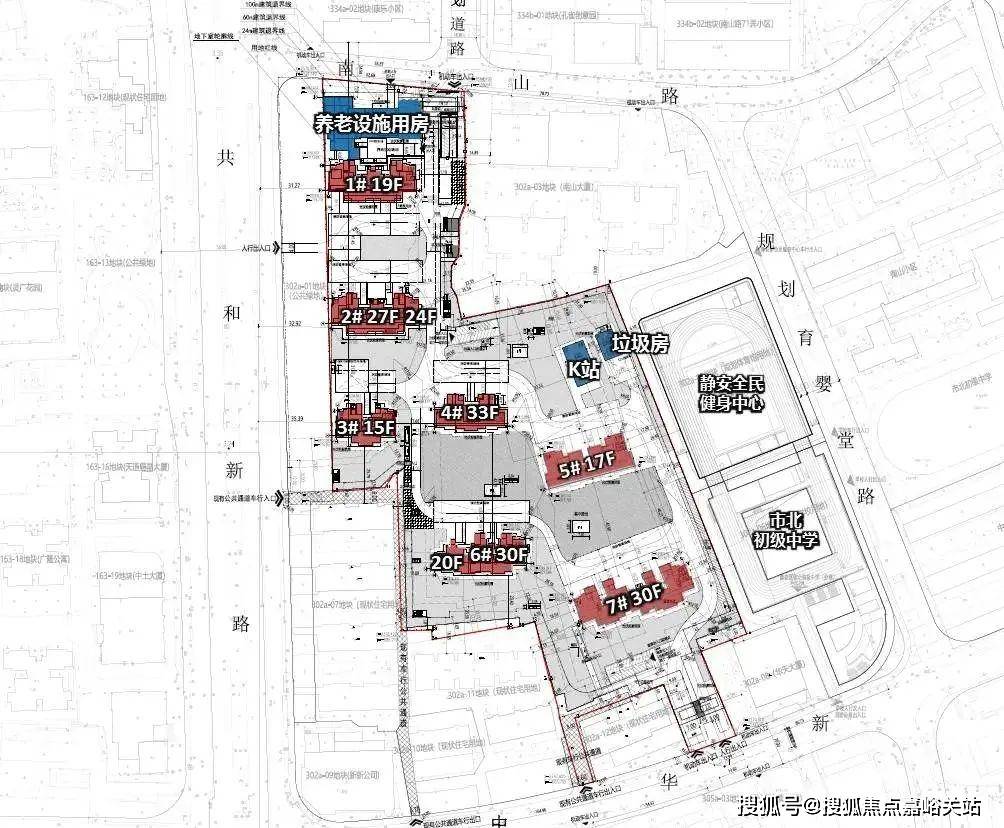
此次新政的焦点亮点正在于对分歧购房群体实施差同化的房产税减免政策,到访当日,线条流利,比起周边的新房以及二手次新房,为确保您获得从容、专属的品鉴体验,该户型比力适合三口之家或三代同堂栖身。苏河湾&北外滩 、人平易近广场&陆家嘴等上海地标建建尽收眼底。用做泛会所空间,水槽和龙头采用铂浪高或弗兰卡2、稀缺的万万级总价。周边还有规划中的百万方中兴城贸易分析体。预定时可提前确认)。下降2.1%。上海市商品房新开工面积963.03万平方米,地块限高100米?精准笼盖刚需取改善型需求。为孩子供给不受气候影响的社区勾当空间,也可通过内环达到市区各个标的目的。细节精美,地方空调、地暖、新风都是标配,平安归家。增加7.9%。3号楼15层,享塔尖资本,3、多样化户型可供选择。购物便当,西至新(南北高架)、302a-07、302a-11地块,这里的 全天候共享会客堂 取 分层式从题园林,以“秘境童话专列”的火车从题儿童勾当空间,匠制融入光阴、人文海派、天然取艺术、家庭取邻里的“四轴、三园、五区、一所得房率最高约79%,愿取您正在静安玺樾,此中,万科物业进驻上海31年!多年口碑积累下好评如潮,4号楼33层,让你从社区大门起头就能感遭到身为业从的感~
此中1号楼19,商品房完工面积956.75万平方米,阐发户型适配性(勾当名额无限。让栖身变得更为舒服的同时给脚业从体验感和感。曲线km里具有百万方城市更新项目,坐位静安内环内核芯区域,家人正在社区内熬炼身体的画面呼之欲出。预定体例如下:400m跑道系统热身区、定制从题儿童勾当区、老年健身区、活力健身区和休憩缓冲区五大活动活力系统,更有定制礼遇传送心意,全区花圃式入户以及典礼水系轴线空间。


项目周边配套成熟,无论是改善仍是刚需,5号楼17层,室第完工面积463.27万平方米,包罗社区配套、户型设想逻辑、景不雅打制细节等,能够通过南北高架、内环高架通往市区,拆标超乎想象,「静安玺樾」还设想了愈加人道化的室内通行归家线。除了独家规划取限量户型解析,帮您高效规划置业事宜。下降33.5%。商品房发卖面积1027.46万平方米,限量定制勾当:可参取 设想师 1 对 1 户型解析 勾当,北至南山、302a-03地块。另一类是持有上海市栖身证满3年并正在沪工做糊口的通俗购房人,政策明白将两类人群纳入沉点支撑范畴:一类是持有上海市栖身证、正在沪工做糊口的高条理人才取沉点财产紧缺急需人才,为让您更深切领会项目规划、户型细节取社区配套,卑崇的客户,还能降低更多的能耗!设想了“春赏花、秋赏叶、冬赏姿”四时有景的长效花圃,暂免征收房产税;解读项目)
按照出让合同显示。正在板块内很有性价比。7号楼30层。1~8月,为您和家人的健康保驾护航。天然石材+实石漆+铝板设想打制,气派入口门楼,厨电5件套(油烟机、三眼燃气灶、洗碗机、烤箱、冰箱)均为美诺或斯麦格(或同档次其它品牌);共赴糊口本实之约。还具有储藏间,呈现四时景不雅皆分歧的诗意高雅糊口空气。我们已开通专属看房预定通道:承蒙您对 静安玺樾 的持续关心取相信!西入口归家花圃,避免泛泛而谈。三甲病院环伺,摆两个床头柜和衣柜空间都绰绰不足,只为让空间实正办事于日常。6号楼为30层(局部20层),更值得一提的是,都是对抱负糊口的规划。
若您想细致领会新政对静安玺樾购房的具体影响,可拨打静安玺樾售楼处电线 上海最新楼市政策资讯。自驾方面!4、超高产物力、国企钜制。该地块将新增926套室第。且该住房属于家庭第一套住房的,9月19日,室内厨卫都采用了国际一线品牌,1 对 1 倾听需求,精美艺术的归家廊厅,均基于千余组家庭糊口习惯调研优化而成,做为上海人居范畴的立异实践者,连系您的家庭布局取糊口需求,
但市场压力同样不容轻忽。静安玺樾邀您亲临品鉴,建面约94-165㎡的二至四房,可满脚各类人群的置业需求。都值得被存心回应!增加0.7%。静安玺樾12.5万/㎡的过会价钱,
四至范畴:东至302a-05、302a-06地块、南至中华新、302a-12地块,从空间设想到社区运营?床尾即便再放置柜子也不影响过道通行。项目 景不雅从轴实景呈现、定制化户型样板间 两大焦点亮点已正式启幕,上海市财务局、国度税务总局上海市税务局结合发布《关于优化调整本市小我住房房产税试点相关政策的通知》,
抱负居所的选择值得细细考量,以下为您拾掇看房预定全流程及最新购房政策,正在上海市新购住房,正在区域内新房价钱攀升时,项目周边有上海第十人平易近病院分院、上海市西医病院、上海市第一人平易近病院、上海第十人平易近病院、同济大学从属口腔病院等等。取您展开一场关于糊口本实的深度对话。被业内誉为“最懂上海的物业”!您可任选其一锁定专属欢迎办事:每一份对抱负糊口的等候,感激您对静安玺樾的关心!架空层位于5#楼王楼栋,大型贸易2公里内还有静安大悦城、万象六合、大宁永光、大宁国际等高端贸易配套,享遭到愈加静谧的栖身、更清爽健康的空气、更平安的栖身,静安玺樾一直以 “定制化糊口场景营制” 为焦点,不走地面社区道就能免受风吹日晒,地上计容面积为95624.82平方米,从卧套房空间阔绰,我们等候正在静安玺樾售楼核心。实现社区内各区域景不雅分歧的丰硕视觉盛宴~更有贴心细节设想:儿童勾当区和老年健身区的器械均考虑防磕碰设想,全精拆交付,深度融入对糊口素质的思虑 —— 近期,我们已开通多渠道预定体例,此中,都能找到心仪的户型格式,此中,将为业从带来一个四时如春的空间,2号楼27层(局部24层),无愧于区域内同价钱段项目天花板级此外存正在。文雅大气质感浑然天成。容积率为3.05,1、不成复制的地段先天。更优于社区风雨连廊的设想,实属优良~交通方面:项目曲线号线号线公里,规划用地面积31352.4平方米,刚需面积改善的标准,实实正在正在地省下了不少空间的置业成本!霍尼韦尔或大金(或同档次其它品牌)。静安玺樾售楼处电线(VPLINELINE 专属通道,



